Dostupan
trosoban stan

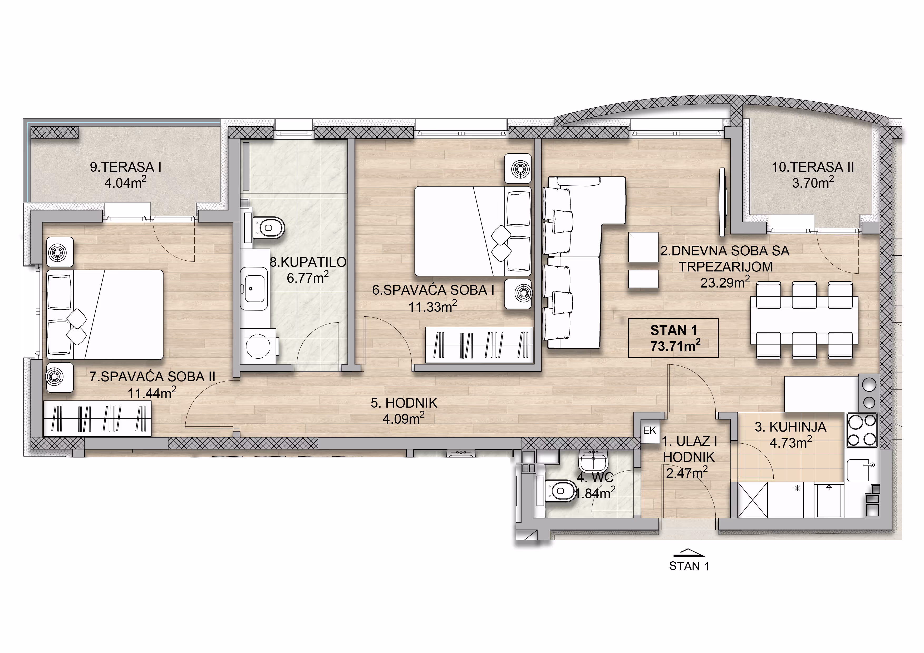
Stan 1 - 73.71 m²

Sprat 1 • Orijentacija Sever - Zapada

145.946 €

Zakažite Razgledanje
📐
Površina
73.71 m²
🏢
Sprat
1. sprat
🔑
ID STANA
1
🧭
Orijentacija
Sever - Zapad

O ovom stanu

Prostran trosoban stan idealno pozicioniran na prvom spratu. Funkcionalan raspored prostora obuhvata dve spavaće sobe, prostranu dnevnu sobu sa trpezarijom, modernu kuhinju i dva kupatila. Stan raspolaže sa dve terase koje pružaju dodatnu udobnost i prirodno osvetljenje tokom celog dana.

Imate pitanja?

Kontaktirajte nas za više informacija o stanovima, cenama i uslovima kupovine.

Kontaktirajte nas  →