Dostupan
Garsonjera

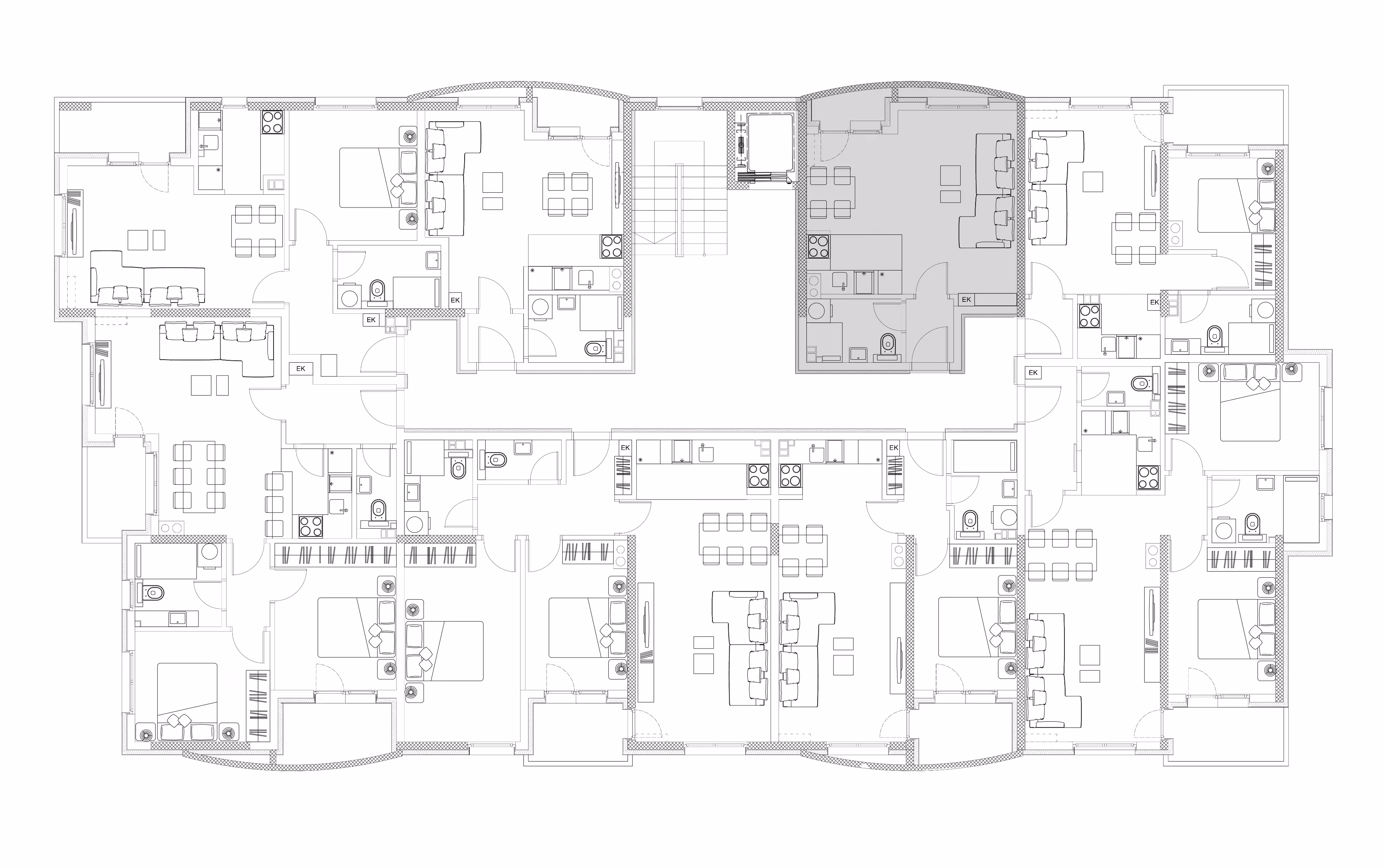
Stan 20 - 30,64m²

Sprat 3 • Orijentacija Sever

Zakažite Razgledanje
📐
Površina
30,64m²
🏢
Sprat
3. sprat
🔑
ID STANA
20
🧭
Orijentacija
Sever

O ovom stanu

Funkcionalna garsonjera na trećem spratu sa pažljivo osmišljenim prostorom. Jedinstven raspored objedinjuje spavaći i dnevni deo, kuhinju i kupatilo. Terasa pruža dodatnu vrednost i mogućnost boravka na otvorenom.

Imate pitanja?

Kontaktirajte nas za više informacija o stanovima, cenama i uslovima kupovine.

Kontaktirajte nas  →