Dostupan
Trosoban Stan

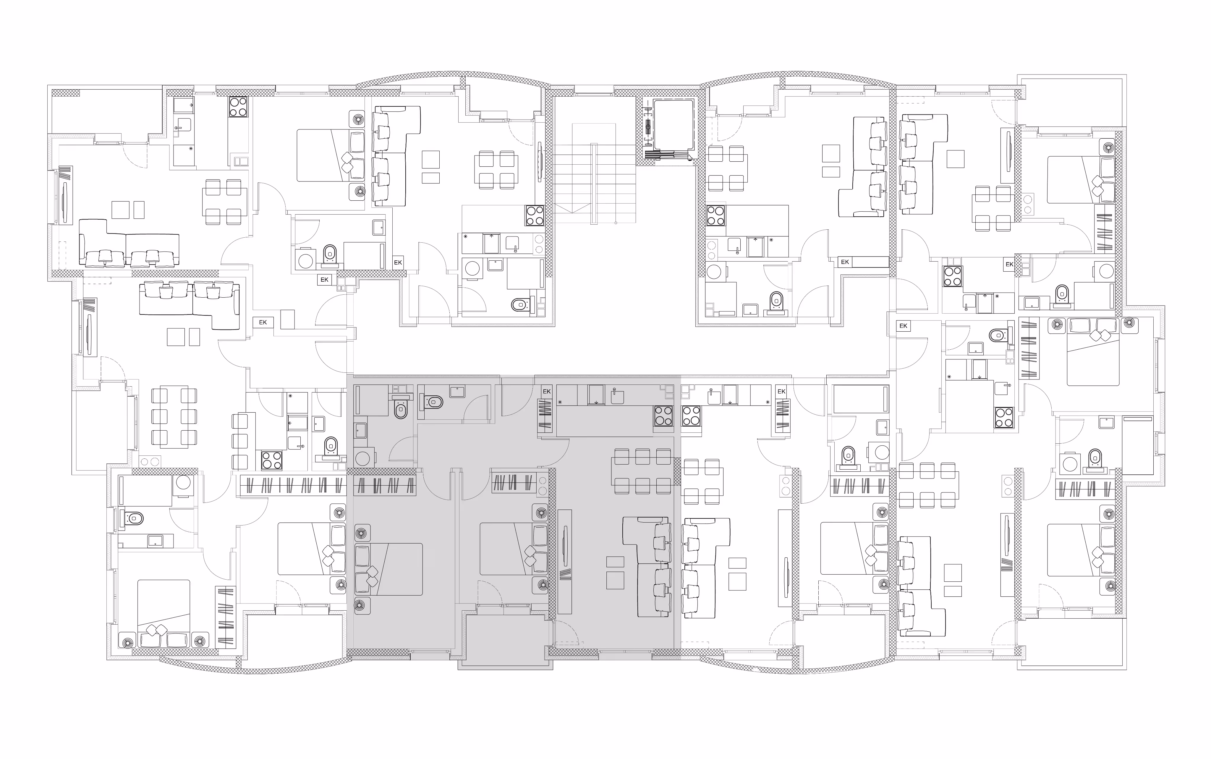
Stan 24 - 66,75m²

Sprat 4 • Orijentacija Jug

132.165 €

Zakažite Razgledanje
📐
Površina
66,75m²
🏢
Sprat
4. sprat
🔑
ID STANA
24
🧭
Orijentacija
Jug

O ovom stanu

Funkcionalan trosoban stan smešten na četvrtom spratu zgrade. Raspored prostora uključuje dve spavaće sobe, prostranu dnevnu sobu sa trpezarijom, kuhinju i dva kupatila. Terasa doprinosi komforu i kvalitetu stanovanja.

Imate pitanja?

Kontaktirajte nas za više informacija o stanovima, cenama i uslovima kupovine.

Kontaktirajte nas  →