Dostupan
trosoban stan

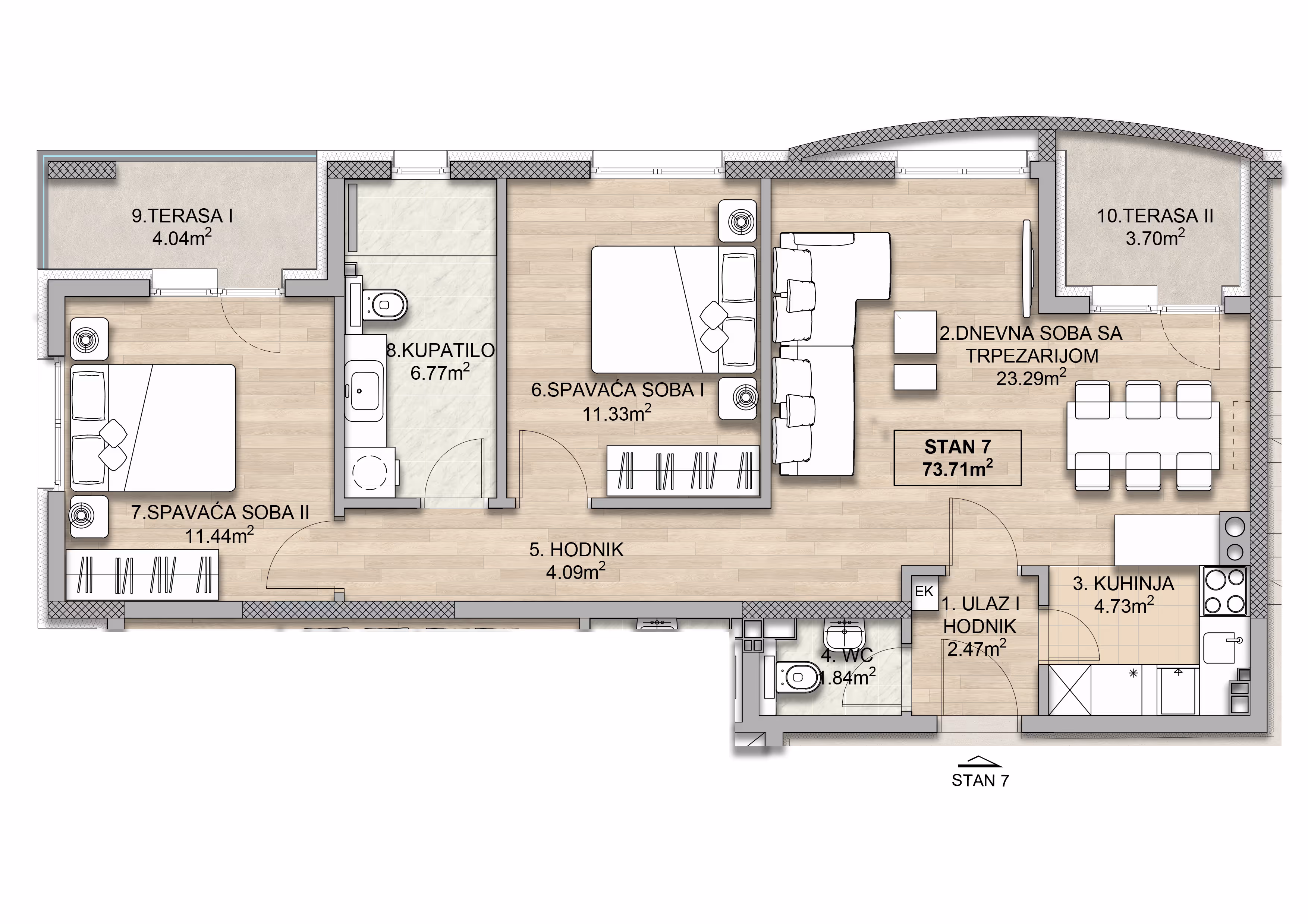
Stan 7 - 73.71 m²

Sprat 2 • Orijentacija Sever - Zapad

145.946 €

Zakažite Razgledanje
📐
Površina
73.71 m²
🏢
Sprat
2. sprat
🔑
ID STANA
7
🧭
Orijentacija
Sever - Zapad

O ovom stanu

Prostran trosoban stan idealno pozicioniran na drugom spratu. Funkcionalan raspored prostora obuhvata dve spavaće sobe, prostranu dnevnu sobu sa trpezarijom, modernu kuhinju i dva kupatila. Stan raspolaže sa dve terase koje pružaju dodatnu udobnost i prirodno osvetljenje tokom celog dana.

Imate pitanja?

Kontaktirajte nas za više informacija o stanovima, cenama i uslovima kupovine.

Kontaktirajte nas  →