rezervisano
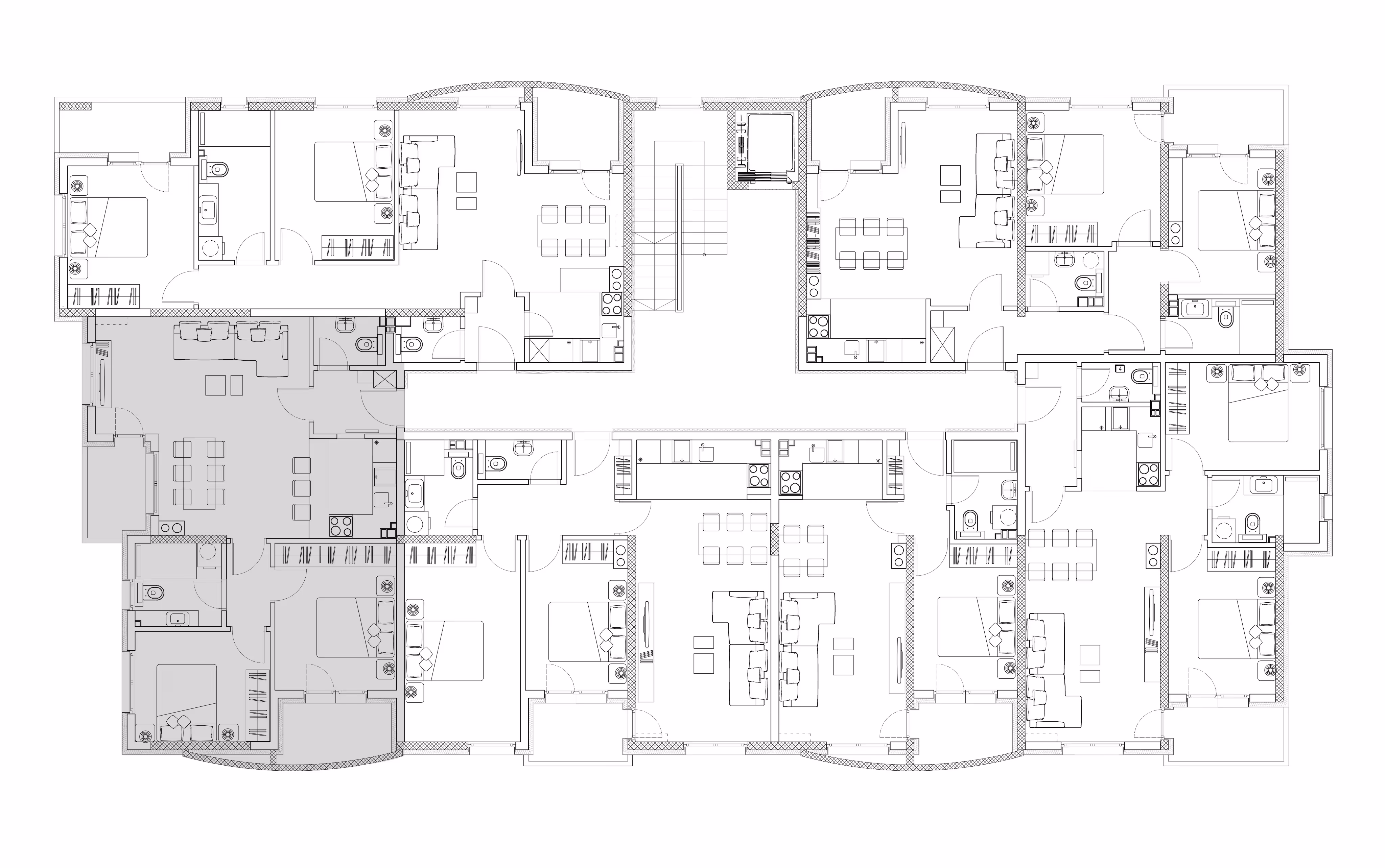
trosoban stan

Stan 8 - 72,04m²

Sprat 2 • Jug - Zapad

142,639 €

Zakažite Razgledanje
📐
Površina
72,04m²
🏢
Sprat
2. sprat
🔑
ID STANA
8
🧭
Orijentacija
Jug - Zapad

O ovom stanu

Komforan trosoban stan smešten na drugom spratu zgrade. Pažljivo osmišljen raspored prostora uključuje dve spavaće sobe, svetlu dnevnu sobu sa trpezarijom, funkcionalnu kuhinju i dva kupatila. Dve terase doprinose prijatnom ambijentu i kvalitetu stanovanja.

Imate pitanja?

Kontaktirajte nas za više informacija o stanovima, cenama i uslovima kupovine.

Kontaktirajte nas  →